Acheter Appartement 4 pièces - 103 m²

Nantes (44000)
468 000 € HAI
réf. VA2942-ALB

Description du bien

Quartier centre ville- Guisthau.
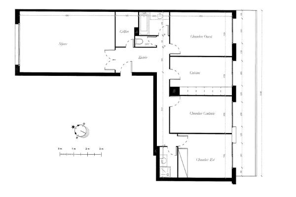
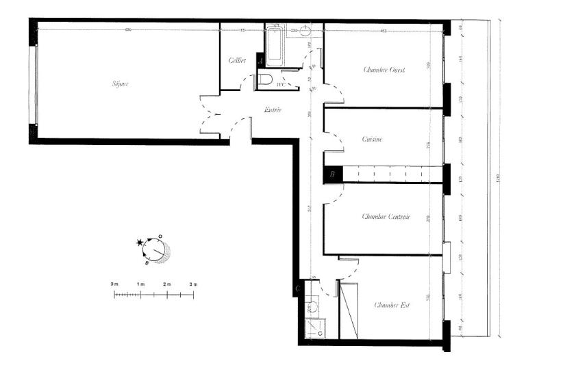
Appartement très lumineux au 2ème étage avec ascenseur et grande terrasse de 20 m2, offrant une belle entrée, un beau séjour de 30 m2, une belle cuisine dînatoire de 12 m2 sur terrasse, 3 chambres, une salle de bain, une salle d'eau, un wc.
Une cave et 2 places de parking complètent ce bien.
Commerces, transports et écoles à proximité.
Merci de contacter Claire Camus : 06 99 18 27 79



Honoraires inclus de 4% TTC à la charge de l'acquéreur. Prix hors honoraires 450 000 €. Dans une copropriété de 4 lots. Aucune procédure n'est en cours. Classe énergie D, Classe climat B Montant estimé des dépenses annuelles d'énergie pour un usage standard : entre 1740.00 € et 2400.00 € sur les années 2021, 2022 et 2023 (abonnements compris). Les informations sur les risques auxquels ce bien est exposé sont disponibles sur le site Géorisques : georisques.gouv.fr.

Appartement
3 Chambres
2 Salle(s) de bain
1 Ascenseur(s)

Informations complémentaires

  • Référence : VA2942-ALB
  • Pièce(s) : 4
  • Surface habitable * : 103 m²
  • Chambre(s) : 3
  • Salle(s) de bain : 2
  • Chauffage : Individuel Electrique
  • Ascenseur : oui
  • Nb. de niveaux : 5
  • Etage : 2
  • Ville : Nantes
  • Charges : 220 €
  • Honoraires TTC : 18 000 €

Informations non contractuelles ne pouvant engager le cabinet.
CC : Charges comprises.
HAI : Honoraires d’agence inclus.
* Surface approximative.

Dépenses énergétiques

logement extrêmement performant logement extrêmement peu performant kWh/m² par an consommation (énergie primaire) kgCO₂/m² par an emissions DPE_ DPE_
kg CO₂/m² par an A B C D E F G émissions de CO₂ très importantes peu d'émissions de CO₂ * Dont émissions de gaz à effet de serre

Géorisques

Les informations sur les risques auxquels ce bien est exposé sont disponibles sur le site Géorisques : www.georisques.gouv.fr

Estimation des coûts énergétiques annuels pour le logement

Entre 1740 et 2400€ par an

Les coûts sont estimés en fonction des caractéristiques de votre logement pour un usage standard sur 5 usages (chauffage, eau chaude sanitaire, climatisation, éclairage, auxiliaires)

Situation géographique

Agence Laurence Beliard Nantes

1 Place Aristide Briand

44000 Nantes

02 40 20 36 56 Nous contacter
Agence Laurence Beliard Nantes
Fiche 21 sur 51

Partager cette annonce

Sur les réseaux sociaux

Par mail

* champs obligatoires

Demande d'information pour le bien réf : VA2942-ALB

Remplissez le formulaire ci-dessous. Vous serez recontacté dans les plus brefs délais.

* champs obligatoires

Mes informations

Mon message

J'accepte que l'agence Laurence Béliard collecte mes données personnelles afin de pouvoir me contacter et m'adresser des informations nécessaires au traitement de ma demande, j'ai la possibilité de retirer à tout moment mon consentement en envoyant un email à contact@agencelaurencebeliard.com. Je peux également consulter la charte de protection des données personnelles.

Dans le cadre de nos activités, nous traitons les données à caractère personnel de nos clients et de prospects dans le respect des règles posées par le Règlement général sur les données personnelles (RGPD) et de la loi n° 78-17 du 6 janvier 1978 relative à l’informatique, aux fichiers et aux libertés. Vous pouvez accéder aux informations sur notre politique de traitement des données personnelles, ainsi qu’à vos droits en consultant la page suivante : https://fnaim.declarations-juridiques.fr/processing-policy/agencelaurencebeliard_887837714