Acheter Appartement 4 pièces - 103 m²
Nantes (44000)Description du bien
Quartier centre ville- Guisthau.
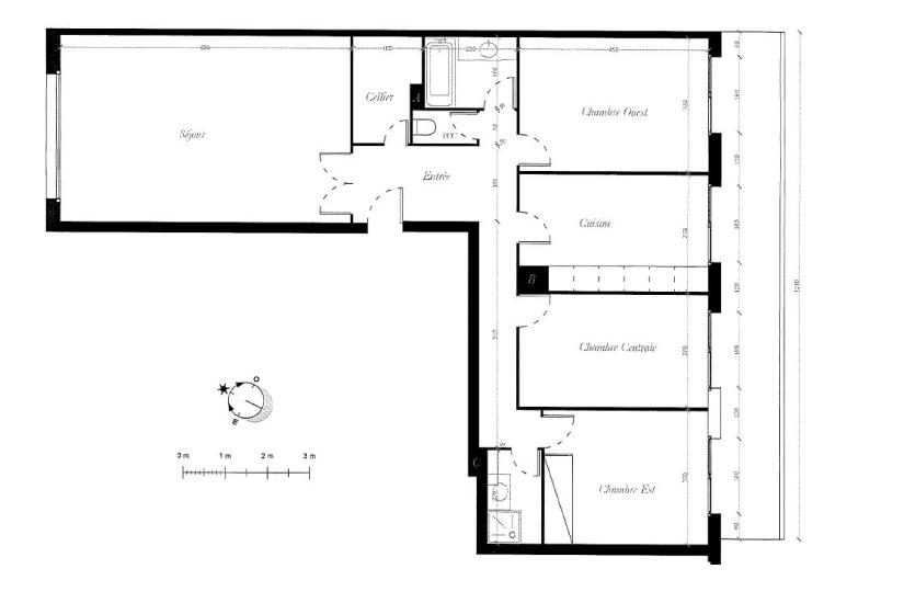
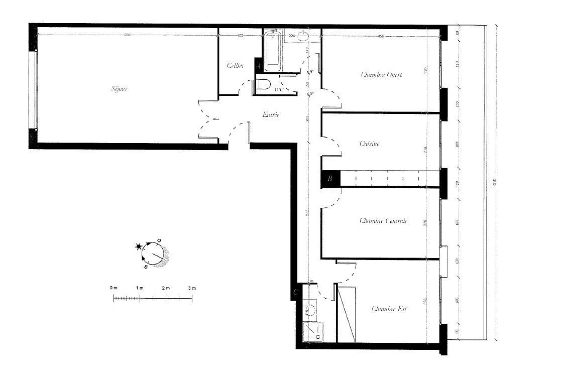
Appartement très lumineux au 2ème étage avec ascenseur et grande terrasse de 20 m2, offrant une belle entrée, un beau séjour de 30 m2, une belle cuisine dînatoire de 12 m2 sur terrasse, 3 chambres, une salle de bain, une salle d'eau, un wc.
Une cave et 2 places de parking complètent ce bien.
Commerces, transports et écoles à proximité.
Merci de contacter Claire Camus : 06 99 18 27 79
Honoraires inclus de 4% TTC à la charge de l'acquéreur. Prix hors honoraires 450 000 €. Dans une copropriété de 4 lots. Aucune procédure n'est en cours. Classe énergie D, Classe climat B Montant estimé des dépenses annuelles d'énergie pour un usage standard : entre 1740.00 € et 2400.00 € sur les années 2021, 2022 et 2023 (abonnements compris). Les informations sur les risques auxquels ce bien est exposé sont disponibles sur le site Géorisques : georisques.gouv.fr.
Informations complémentaires
- Référence : VA2942-ALB
- Pièce(s) : 4
- Surface habitable * : 103 m²
- Chambre(s) : 3
- Salle(s) de bain : 2
- Chauffage : Individuel Electrique
- Ascenseur : oui
- Nb. de niveaux : 5
- Etage : 2
- Ville : Nantes
- Charges : 220 €
- Honoraires TTC : 18 000 €
Informations non contractuelles ne pouvant engager le cabinet.
CC : Charges comprises.
HAI : Honoraires d’agence inclus.
* Surface approximative.
Dépenses énergétiques
Géorisques
Les informations sur les risques auxquels ce bien est exposé sont disponibles sur le site Géorisques : www.georisques.gouv.frEstimation des coûts énergétiques annuels pour le logement
Entre 1740 et 2400€ par an
Les coûts sont estimés en fonction des caractéristiques de votre logement pour un usage standard sur 5 usages (chauffage, eau chaude sanitaire, climatisation, éclairage, auxiliaires)
Situation géographique